Herta and Paul Amir Building, Tel Aviv Museum of Art

Tel Aviv, Israel / Preston Scott Cohen

3 MIN READ

Category: Bond
Award

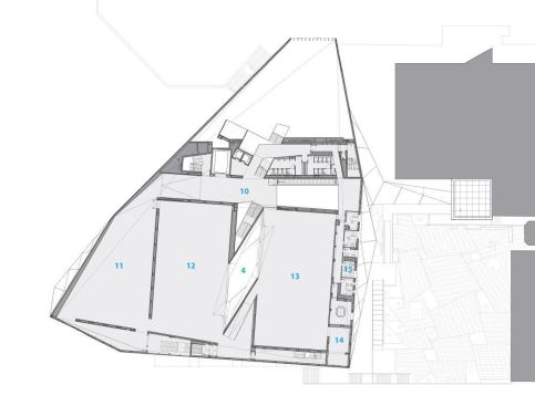
In designing the Herta and Paul Amir Building, an expansion to the Tel Aviv Museum of Art, Preston Scott Cohen of Cambridge, Mass., had to solve a tricky geometry problem. The program called for several rectangular galleries to display diverse collections of work to be situated on a distinctly triangular parcel in Tel Aviv’s cultural district.

The building’s resulting shape—defined by its angular, precast concrete and glass façade—looks as though the architect simply folded and creased the corners of a cube until it complied with the lines of the site. Cohen made use of extensive digital and physical modeling in order to create the façade, whose parabolic shape derives from 460 shaped, precast concrete panels. The façade is supported by an extensive steel structure, which integrates the mechanical systems.

The designer squared another circle by fitting 195,000 square feet of building space onto a 43,600-square-foot area. The museum includes three galleries dedicated to architecture and design, three galleries that chronologically detail the history of modern and contemporary Israeli art, and galleries for special exhibitions as well as prints and drawings—all stacked over five floors, three of which are below grade.

Cohen built the individual galleries around a central “lightfall”—an 87-foot-tall winding atrium—the construction of which also required parabolic modeling. Stairs, escalators, and elevators convey visitors through the stacked, independent galleries, with circulation paths leading back to and around the lightfall at every level.

As if the space constraints weren’t enough, Cohen also had to contend with Israeli architect Dan Eytan’s Brutalist design for the original, neighboring Tel Aviv Museum of Art building. He did so primarily by working with concrete panels, which were poured on site.

The jurors considered the way that the building expresses its own condition. “I wonder whether the assembly of this complex set of geometric forms rationally impedes or encourages the exhibition of the materials and the nature of the visitor’s experience in this space, in relation to what the intended narrative of the museum is expected to be,” juror Ted Landsmark said.

“It does reveal the process of construction,” juror Trey Trahan said. “That is one of its strengths.” Juror Raymund Ryan lauded the work as “a very interesting new kind of voice that’s in American architecture.”


Project Credits

Herta and Paul Amir Building, Tel Aviv Museum of Art, Tel Aviv, Israel
Client Tel Aviv Museum of Art
Architect Preston Scott Cohen, Cambridge, Mass.—Preston Scott Cohen (principal in charge of design); Amit Nemlich (project architect); Tobias Nolte, Bohsung Kong (project team); Steven Christensen, Guy Re Moor (project assistants); Cameron Wu, Andrew Saunders, Janny Baek (competition team)
Project Manager CPM Construction Managment
Structural Engineer YSS Consulting Engineers—Dani Shacham
HVAC Engineer I. Shahar & Co. Consulting Engineers—M. Doron
Lighting Consultant Suzan Tillotson
Glazing Consultant Landman Aluminum
Concrete Façade and Lightfall Contractor Hezkelevitch Engineering
General Contractor
Danya-Minrav
Size 195,000 square feet (building area); 43,600 square feet (site area)
Cost $55 million (total project cost)
Photograph ©Amit Geron, Courtesy Tel Aviv Museum of Art

About the Author

No recommended contents to display.

Upcoming Events

  • Slate Reimagined: The Surprising Advantages of Slate Rainscreen Cladding

    Webinar

    Register Now
  • The State of Residential Design Today: Innovations and Insights from RADA-Winning Architects

    Webinar

    Register for Free
  • Specifying Smarter with Copper-Clad Aluminum (CCA) Metal-Clad Cable

    Webinar

    Register for Free
All Events