Barrio Historico House

Tucson, Ariz. / HK Associates

2 MIN READ

Category: Live
Citation

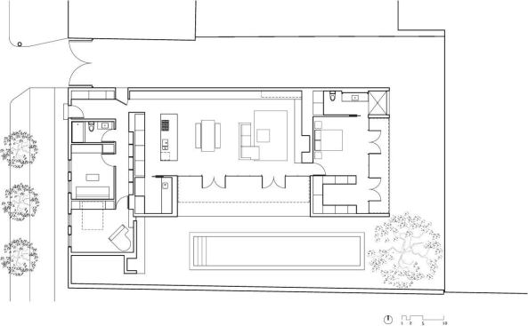
The front of the residence designed by Kathy Hancox and Michael Kothke takes its cues from period homes in Tucson, Ariz.’s Barrio Historico. Lots are small here, and houses push right up to the street. Neighborhood design guidelines require front façades be stoically devoid of detail, and this one is pared down enough to be nearly unnoticeable.

The architects focused their care on what happens inside the front gates, resulting in a house that is smartly planned, filled with light, and far more International Style than Barrio Moderne. “It creates a subtle elegance in the middle of a neighborhood, where opening the door creates this Alice in Wonderland–like surprise of unexpected response to … [the] community,” juror Ted Landsmark said.

The house is composed of insulated concrete form walls, which are not as massive as traditional Southwestern masonry. Eschewing the local penchant for keeping buildings cool by shutting out the sun, this home embraces the daylight.

The sky can be glimpsed from most rooms either through slit skylights or, in the cases of the kitchen, living room, and master bedroom, floor-to-ceiling glass. These openings allow the house’s white-cement-plaster walls to capture the ever-changing hues of the Sonoran sun. High-performance, low-E-coated IGUs and generous overhangs protect the interior in the summer, while allowing the floors to be passively warmed in the winter. Tankless hot water, prewiring for photovoltaic panels, and rainwater collection are also part of the suite of resource-conserving technologies.


Project Credits

Barrio Historico House, Tucson, Ariz.
Client Withheld
Architect HK Associates, Tucson, Ariz— Kathy Hancox, Michael Kothke
Contractor Saavy—Luis Ibarra
Millwork DaVinci Designs—Ben Schmitt
Steel Parsons Steel Erectors—Tom Glenn
Glazing Columbus Glass + Screen—Mike Hither
Structural Harris Engineering Services— Mike Harris
Mechanical KC Mechanical Engineering— Ken Cawthorne
Electrical Matthews Consulting and Design— Jeff Matthews
Size 2,100 square feet
Cost Withheld
Photograph Bill Timmerman

No recommended contents to display.

Upcoming Events

  • Future Place

    Irving, TX

    Register Now
  • Archtober Festival: Shared Spaces

    New York City, NY

    Register Now
  • Snag early-bird pricing to Multifamily Executive Conference

    Newport Beach, CA

    Register Now
All Events