2012 Annual Design Review, Work Category, Citation: McGarrah Jessee Office

McKinney York Architects

1 MIN READ

Category: Work
Citation

Originally built in 1954, the former American National Bank building in Austin, Texas, had become a long-vacant relic of an earlier age, landing in the crosshairs for demolition (and earning an unenviable spot on Preservation Texas’s list of “Most Endangered” buildings). Despite these challenges, there were reasons aplenty to save the structure—including its central location, original Florence Knoll interiors, and flexible floor plan.

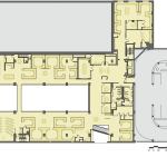
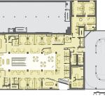
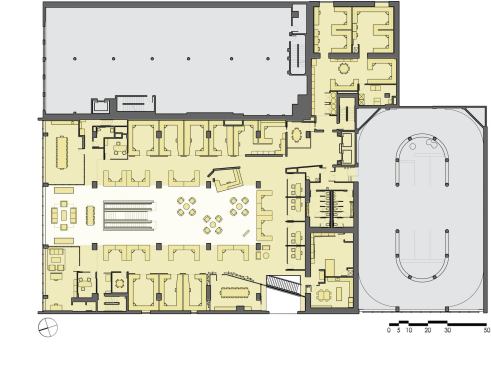
When a local developer acquired the property and chose to reuse the historic structure, it hired Austin-based McKinney York Architects to redesign the interior for a new tenant—McGarrah Jessee, an advertising agency and the building’s new namesake. The design team recycled original materials, including parking grates, plate glass, teak paneling, and marble, wherever possible. Taking cues from an original Seymour Fogel mural on the atrium wall, the architects animated the space with colorful partitions, Knoll furniture, and a new surround for the original, now-restored escalators—the first ever installed in Austin.

“I thought it was very smart and very in sympathy with the original building without over-respecting it.” —Mark Yoes


Project Credits Project McGarrah Jessee Office, Austin, Texas
Client McGarrah Jessee and Kemp Properties
Architect McKinney York Architects, Austin, Texas—Heather H. McKinney, FAIA, Will Wood, AIA, Al York, AIA, Michelle Rossomando, AIA, Sarah Bullock McIntyre, Aaron Taylor
GeneralContractor AKA Builders
StructuralEngineer CBM Engineers
M/E/P Engineer MEJ & Associates
Size 35,700 square feet
Cost Withheld
Photographer Thomas McConnell

About the Author

No recommended contents to display.

Upcoming Events

  • Reimagining Sense of Place: Materiality, Spatial Form, and Connections to Nature

    Webinar

    Register for Free
  • Homes that Last: How Architects Are Designing a Resilient Future

    Webinar

    Register Now
All Events