2012 Annual Design Review, Work Category, Citation: Boulevard Brewing Company Cellar 1 Expansion

El Dorado

1 MIN READ

Category: Work
Citation

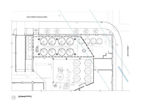
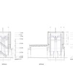
Tucked between two busy traffic throughways in Kansas City, Mo., is the 100-year-old building that serves as the home for Boulevard Brewing Co., one of the area’s largest micro­breweries. When it came time for the company’s operation to expand with eight new 40-foot-tall tanks for beer brewing, they turned to local firm El Dorado to fit the new equipment into an existing space, which was only 15 feet high. The resulting glass-and-perforated-aluminum-panel-clad vertical addition encloses the tanks, making them accessible for monitoring and for adding ingredients 24 hours a day, during all seasons.

In addition to providing shelter for the new brewing tanks, the structure—which is chamfered at its northern end in a nod to the path of an underground river on the site—serves as a light monitor, evacuates hot air from the rest of the facility through its roof, and allows natural daylight to permeate adjacent brewing spaces in the complex.

“You’re going to put in eight 40-foot vats. So what do you do? You put them on top of the roof and you make a hood ornament out of them. It calls attention to this gritty part of town.” —Carol Ross Barney


Project Credits Project Boulevard Brewing Company Cellar 1 Expansion, Kansas City, Mo.
Client Boulevard Brewing Company
Architect El Dorado, Kansas City, Mo.—Josh Shelton, AIA (principal); Chris Burk (project manager); Steve Salzer, AIA (envelope design)
GeneralContractor El Dorado
M/E/P Engineer PKMR Engineering
Structural and Civil Engineer Genesis Structures
Lighting Consultant Derek Porter Studio
Brewing Infrastructure, Design, and Installation Boulevard Brewing Company
Size 2,000 square feet
Cost Withheld
Photographer Mike Sinclair

About the Author

Katie Gerfen

Katie Gerfen is the former editor-in-chief of ARCHITECT, as well as the former editor of Custom Home.

No recommended contents to display.

Upcoming Events

  • Design Smarter: Leveraging GIS, BIM, and Open Data for Better Site Selection & Collaboration

    Live Webinar

    Register for Free
  • Slate Reimagined: The Surprising Advantages of Slate Rainscreen Cladding

    Webinar

    Register Now
  • The State of Residential Design Today: Innovations and Insights from RADA-Winning Architects

    Webinar

    Register for Free
All Events