2012 Annual Design Review, Play Category, Award: Trail Center at Camp Prairie Schooner

El Dorado

2 MIN READ

Category: Play
Award

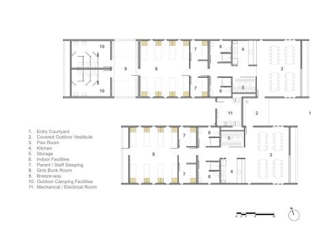
Camping once meant roughing it, but Girl Scouts in northeast Kansas and northwest Missouri can now earn badges without giving up modern comforts. The new Trail Center at Camp Prairie Schooner, designed by El Dorado, allows girls to camp in a natural setting while enjoying amenities such as Wi-Fi, indoor plumbing, and air conditioning. Located in a wooded area 19 miles southeast of downtown Kansas City, Mo., traversed by creeks and nature trails, the camp features two bunkhouses with kitchens, flexible spaces, a public restroom and shower facilities, accommodating up to 40 girls and eight parents or staff members.

The architects placed the two parallel, bar-shaped bunkhouses, totaling 4,430 square feet, adjacent to an existing dining hall to form an outdoor courtyard. Simple wood-framed scissor trusses support the bunkhouses’ roofs, which are clad in corrugated metal panels in alternating neutral colors that wrap the building’s long elevations. By contrast, the shorter, east- and west-facing end walls are as bright as the boxes of the Scouts’ famous cookies, layered with fluted, colored polycarbonate glazing and painted concrete board over a rainscreen. At night, the colorful end walls glow like lanterns, and during the day they allow light to penetrate. Light wells bring additional daylight into the center of each bunkhouse, and the color theme continues along a series of interior walls and the surfaces of the custom bunkbeds.

“I don’t know a child who wouldn’t want to stay in those bunkhouses.” —Elizabeth Ranieri


Project Credits Project Trail Center at Camp Prairie Schooner, Kansas City, Mo.
Client Girl Scouts of northeast Kansas and northwest Missouri
Architect El Dorado, Kansas City, Mo.—Douglas Stockman, AIA (principal-in-charge); Sean Slattery, AIA (project manager); Brandon Froelich (project designer)
GeneralContractor Haren Laughlin Construction
M/E/P Engineer PKMR Engineering
Structural & Civil Engineer Wallace Engineering
LandscapeArchitect Confluence
CodeConsultant Code Consulting Services
Furnishings Custom bunk bed design and fabrication by El Dorado’s 2011–2012 graduate architecture studio at Kansas State University (co-taught by Douglas Stockman, AIA, and David Dowell, AIA)
Size 4,430 square feet
Cost $797,400
Photographer Mike Sinclair

About the Author

Murrye Bernard

Murrye Bernard, AIA, LEED AP, is an architect, writer, editor, and strategist based in Los Angeles. Her work has appeared in many design publications, including Architectural Lighting, Architectural Record, and Hospitality Design. Most recently, she was the managing editor of Contract magazine; she has also served as editor of AssociateNews and Forward, newsletters of the AIA National Associates Committee, and as contributing editor to e-Oculus, the newsletter of the AIA New York Chapter. Murrye earned a B.Arch. from the University of Arkansas, and has practiced with Polk Stanley Rowland Curzon Porter Architects (now Polk Stanley Wilcox) in Little Rock, Ark., and TEK Architects in New York.

No recommended contents to display.

Upcoming Events

  • Design Smarter: Leveraging GIS, BIM, and Open Data for Better Site Selection & Collaboration

    Live Webinar

    Register for Free
  • Slate Reimagined: The Surprising Advantages of Slate Rainscreen Cladding

    Webinar

    Register Now
  • The State of Residential Design Today: Innovations and Insights from RADA-Winning Architects

    Webinar

    Register for Free
All Events