2012 Annual Design Review, Bond Category, Honorable Mention: Lakewood Cemetery Garden Mausoleum

HGA Architects and Engineers

1 MIN READ

Category: Bond
Honorable Mention

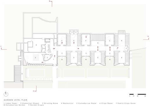
Sited in the serene landscape of Minneapolis’s 141-year-old Lakewood Cemetery, the Garden Mausoleum is a thoughtful construction of traditional funerary materials including granite, marble, and bronze wrought into a contemporary form designed to provide burial space for more than 10,000 people. Public areas occupy a 5,500-square-foot volume at street level, and visitors progress down to the more private 19,000-square-foot lower level, cut into a hillside, that holds the chapel and daylit, marble-lined crypt and columbarium rooms.

“I think that the light is just so skillfully handled … the way that light would animate the space over the course of the day, so that really simple materials can be used or should be activated by the light.” —Phoebe Crisman


Project Credits Project Lakewood Cemetery Garden Mausoleum, Minneapolis
Client Lakewood Cemetery Association
Architect HGA Architects and Engineers, Minneapolis—Daniel Avchen, FAIA (principal-in-charge); Joan Soranno, FAIA (design principal); Stephen Fiskum, AIA (project manager); John Cook, FAIA (project architect); Nick Potts, AIA, Michael Koch, AIA, Eric Amel, AIA, Steve Philippi, Jay Lane, Ross Altheimer, Robert Johnson Miller (project team)
StructuralEngineer HGA—Paul Asp, Soon Sim Hakes
MechanicalEngineer HGA—Craig Lemma
Civil Engineer HGA—Jim Husnik
Electrical Engineer HGA—Ben Gutierrez
Lighting Designer HGA—Tao Ham
Interior Designer HGA—Rich Bonnin
Graphic Design HGA—Gretta Fry
Owner’s Representative Nelson, Tietz & Hoye
General Contractor M.A. Mortenson Co.
Landscape Architect Halvorson Design Partnership—Craig Halvorson, Bryan Jereb
Master Plan Elizabeth Vizza
Mausoleum Consultant Carrier Mausoleums Construction
Acoustic Consultant Kvernstoen, Rönnholm & Associates
Audiovisual Consultant Electronic Design Co.
Reflecting Pool Consultant Commercial Aquatic Engineering
Mosaic Tile Consultant CSI—Tom D. Lynch
Size 24,500 gross square feet
Cost $25.2 million (including 4-acre site)
Photographer Paul Crosby

About the Author

Katie Gerfen

Katie Gerfen is the former editor-in-chief of ARCHITECT, as well as the former editor of Custom Home.

No recommended contents to display.

Upcoming Events

  • Slate Reimagined: The Surprising Advantages of Slate Rainscreen Cladding

    Webinar

    Register Now
  • The State of Residential Design Today: Innovations and Insights from RADA-Winning Architects

    Webinar

    Register for Free
  • Specifying Smarter with Copper-Clad Aluminum (CCA) Metal-Clad Cable

    Webinar

    Register for Free
All Events