2012 Annual Design Review, Bond Category, Award: Lincoln Center Theatre LCT3

H3 Hardy Collaboration Architecture

2 MIN READ

Category: Bond
Award

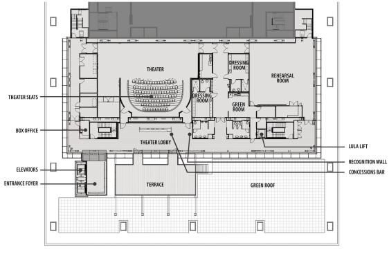
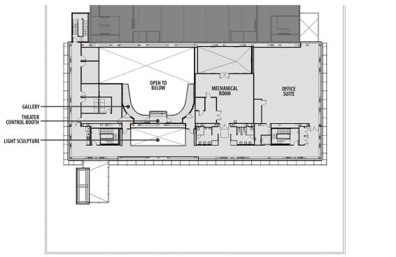
Though its campus houses many of New York’s most preeminent performing arts institutions, Lincoln Center felt it was still missing a small theater amenable to emerging playwrights and more intimate performances. But it was also missing something else: available space to build such a theater. The dense Manhattan neighborhood wouldn’t allow any give in the campus footprint, and though there are open plazas, these have become canonical urban areas in their own right. In the end, H3 Hardy Collaboration Architecture settled on an unlikely solution: perching the new 23,000-square-foot Claire Tow Theater, home to Lincoln Center Theater LCT3, atop the Eero Saarinen-designed Lincoln Center Theater.

The rooftop addition rests on six concrete structural columns in the existing building, bridging the gaps between them with steel trusses. The architects punched through one of Saarinen’s concrete ceiling coffers to accommodate a channel-glass-enclosed elevator shaft, which connects the new 112-seat theater to the existing lobby. Aluminum screens prevent excessive heat gain and break up the addition’s mass. Clad in glass, the orthogonal building corresponds to Saarinen’s midcentury aesthetic beneath it. Now there are three main horizontal registers: Saarinen’s hulking concrete entablature, with the original glass curtainwall lobby directly underneath, and the new glass addition above.

”You’re messing with iconic architecture here, and the potential to go awry is huge. Yet they did a great job of being respectful of the existing building while still giving you a sense that they were trying to create something that had some identity.” —G. Martin Moeller Jr.


Project Credits Project Lincoln Center Theater LCT3, New York
Client Lincoln Center Theater
Architect H3 Hardy Collaboration Architecture, New York—Ariel Fausto, AIA (partner); Hugh Hardy, FAIA (founding partner); Mercedes Armillas, AIA (associate); Sara Silvestri, Angela Chi, Margaret Sullivan (director of interiors); Lissa Evans
M/E/P/F Engineer Arup
Structural Engineer Severud Associates
Theater Consultant Fisher Dachs
Acoustical Consultant Jaffe Holden
Vertical Transportation Van Deusen & Associates
Lighting Consultant Fisher Marantz Stone
LEED Consultant Ambrosino DePinto Schmieder
Code Consultant William Vitacco Associates
Signage/Graphic Design MTWTF
Contractor Yorke Construction Corp.
Size 23,000 square feet
Cost Withheld
Photographer Francis Dzikowski/ESTO

About the Author

No recommended contents to display.

Upcoming Events

  • Design Smarter: Leveraging GIS, BIM, and Open Data for Better Site Selection & Collaboration

    Live Webinar

    Register for Free
  • Slate Reimagined: The Surprising Advantages of Slate Rainscreen Cladding

    Webinar

    Register Now
  • The State of Residential Design Today: Innovations and Insights from RADA-Winning Architects

    Webinar

    Register for Free
All Events