200 Fifth Avenue

New York

2 MIN READ

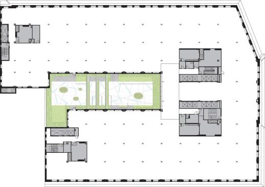
Studios Architecture • Restoring old buildings to compete in Manhattan’s aggressive real estate market—which is flooded with new construction—is always risky business. Footprints, heights, and setbacks are usually inviolate, and existing conditions are often problematic. This is what faced Studios Architecture when the firm began a restoration of 200 Fifth Avenue, a 101-year-old, 14-story commercial building overlooking Manhattan’s historic Madison Square Park. The restoration included the exceptional Neo-Renaissance façade and vaulted entries, as well as the redevelopment of the abandoned courtyard, enclosed by U-shaped floor plates, to its former glory. The heavy bronze curtain wall was replaced with three large panes of low-iron, antiglare glass, secured by four small patch fittings and two high-tension cables. More than a thousand windows were replaced with high-efficiency models to match the original sight lines, and the original bronze-clad frames were maintained and restored.

Juror Bill Valentine commented, “It’s a fascinating story about how they altered the space on the inside. It’s adaptive reuse at close to its very best.” The jurors were also impressed by the architects’ redesign of the courtyard, which includes a new terra-cotta rainscreen and setbacks that allow natural light to reach the lower floors. The architects removed the courtyard’s east wall, and by doing so were able to extend the floor plates 20 feet to the west. The addition of these long spans allowed the creation of column-free spaces for better circulation and outdoor terraces.


Project Credits

200 Fifth Avenue, New York
Client L&L Holding Company
Architect Studios Architecture, New York—Todd DeGarmo (principal-in-charge); David Must (project manager); David Burns (project designer); Graham Clegg (project architect)
Construction Manager Structure Tone
M/E/P Engineers FMC Associates
Structural Engineer Thornton Tomasetti
Project Manager Gardiner & Theobald
Lighting Design Johnson Light Studio; Kugler Ning Lighting Design
Landscape Architect Landworks Studio
Expediter/Code Consultant Charles Rizzo & Associates
LEED Consultant CodeGreen Solutions
Geotech Consultant Langan Engineering & Environmental Services
Preservation Consultant Higgins Quasebarth & Partners
Acoustical Consultant Cerami & Associates
Elevator Consultant MJR Elevator Consulting Group
Size 650,000 square feet
Cost $166.15 per square foot
Photography Nikolas Koenig

About the Author

No recommended contents to display.

Upcoming Events

  • Design Smarter: Leveraging GIS, BIM, and Open Data for Better Site Selection & Collaboration

    Live Webinar

    Register for Free
  • Slate Reimagined: The Surprising Advantages of Slate Rainscreen Cladding

    Webinar

    Register Now
  • The State of Residential Design Today: Innovations and Insights from RADA-Winning Architects

    Webinar

    Register for Free
All Events