2012 AL Design Awards: House of Air, San Francisco

Entrant: Mark Horton Architecture

2 MIN READ

This former biplane hangar is being given a second chance to become airborne in its new incarnation as the House of Air. The 21,440-square-foot trampoline facility is located in San Francisco’s Golden Gate Park on the historic Crissy Field landing strip. The original 1920s structure required extensive seismic upgrades, leaving little remaining budget to deal with any architectural improvements. These economic constraints challenged Mark Horton Architecture to find creative solutions for the lighting as they worked the design into the building’s retrofit. By installing off-the-shelf fluorescent strip fixtures between translucent blue polycarbonate walls, the architects found an inventive and cost-effective solution to light two spaces at once with a limited palette.


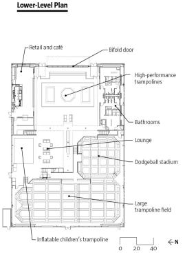
The House of Air capitalizes on the lengthy spans of the hangar to house a large field trampoline, a side trampoline which doubles as a dodge-ball court, and three performance trampolines. The performance trampolines provide a training location for competitive skiers, snowboarders, and wakeboarders to practice their tricks. The facility also contains locker rooms and meeting facilities, as well as a small café and lounge, with structural-steel catwalks providing spectator vantage points.

Vertical deployment of the luminaires echoes the motion of the trampoline users and also creates a dynamic visual impact in both the main acrobatic arena and the perimeter spaces. Pivoting panels mounted in the walls allow views into the trampoline areas when open and privacy for those inside when closed. This innovative solution using materials unifies the project, and the emphasis on verticality reinforces the House of Air branding.

Jury Comments: A fun project that makes the most of limited resources. • Using the linear fluorescent lamps in a vertical position is a nice way to reinforce the activity that is taking place here—jumping. It provides a nice visual cue.



Details

Project: House of Air, San Francisco
Architect: Mark Horton Architecture, San Francisco
Lighting Consultant: Associated Lighting Representatives, Oakland, Calif.
Photographer: Ethan Kaplan Photography
Project Size: 21,440 square feet
Project Cost: $150 per square foot (includes hazmat remediation, historical restoration, and structural stabilization)
Lighting Materials Cost: $7.50 per square foot
Lighting Installation Cost: $1.88 per square foot
Lighting and Electrical Subcontractor Cost: $20.25 per square foot
Watts per Square Foot: 0.91
Manufacturers: Finelite, H.E. Williams, Philips Omega, Sengo, Solis, Visa Lighting

About the Author

Deane Madsen

Deane Madsen, Assoc. AIA, LEED Green Associate, is the former associate design editor for ARCHITECT, and still covers architecture and design in Washington, D.C. He earned his M.Arch. at UCLA's Department of Architecture and Urban Design. Follow Deane on Twitter at @deane_madsen.

No recommended contents to display.

Upcoming Events

  • Design Smarter: Leveraging GIS, BIM, and Open Data for Better Site Selection & Collaboration

    Live Webinar

    Register for Free
  • Slate Reimagined: The Surprising Advantages of Slate Rainscreen Cladding

    Webinar

    Register Now
  • The State of Residential Design Today: Innovations and Insights from RADA-Winning Architects

    Webinar

    Register for Free
All Events