









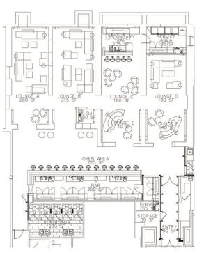
Overall plan.
The entry coat check area was fashioned as a portal. The polishe… The entry coat check area was fashioned as a portal. The polished surfaces reflect light for a dramatic entrance. The glass walls are backlit with a series of RGB LED modules. Due to the restricted wall depth of 3 inches, the LED modules are mounted tightly together and can display patterns and low-resolution animation. Concealed track fixtures accent the desk.
The LED module configuration was detailed to avoid the structura… The LED module configuration was detailed to avoid the structural supports and subsequent shadows.
Entering the lounge, Salon D is directly in front of you. The gy… Entering the lounge, Salon D is directly in front of you. The gypsum frames float from the wall on a pillow of white light. Linear LED fixtures provide this effect and the fixture's slim profile kept the gypsum elements slim as well. In the center, an array of light, frames a video art projection. The LED sources allowed this effect to continue throughout the lounge and still meet the governing energy codes.
In Salon C the service bar's backlit glass detail is identical t… In Salon C the service bar's backlit glass detail is identical to the entry wall. The bottle shelves are incorporated into the wall. Warm-white LED fixtures fit within the small niche provided and generate minimal heat. A pair of floating gypsum frames flanks the front sitting area.
Salon A and B-the two remaining salons-are mirror images of each… Salon A and B-the two remaining salons-are mirror images of each other. Along each side, concealed track fixtures with infrared-coated PAR lamps, heighten the texture of the stonewalls.
A central corridor connects the four Salons.
In the main bar, the longer expanse of backlit glass allows for … In the main bar, the longer expanse of backlit glass allows for more animated effects that are experienced in part or whole depending on the guest's location. Recessed MR16 downlights have been added for accent on the bar top and glass display.
In the restroom, the sink appears to float off of the wall becau… In the restroom, the sink appears to float off of the wall because of the LED fittings installed behind the resin lenses. The fixture also provides a warm glow on an occupant's face.
The communal restroom has private stalls and the gender designat… The communal restroom has private stalls and the gender designation for each is reinforced with color. A resin panel, inserted in the door, allows the gender symbol and handle to glow with color.