2013 AIA COTE Top Ten Green Projects: Federal Center South, Building 1202

4 MIN READ

Federal Center South in Seattle sets a new standard in high-performance and cost-effective workplace environments. Led by ZGF Architects and Sellen Construction, the project’s integrated design team fused programmatic, functional, and aesthetic objectives that transformed the 4.6-acre brownfield site into a highly flexible and sustainable regional headquarters for the U.S. Army Corps of Engineers (USACE) Northwest District. (Click here for related story.) The building incorporates active and passive systems, materials, and strategies in new ways that place it within the top 1 percent of energy-efficient office buildings across the country.

Jury: “This project brought a lot of dimensions together. It gathered the massing in a kind of singular gesture that worked well on the site, so it subjugates itself to a design idea about community. Also, the contrast between a very sleek exterior and more warm interior was intriguing, and it feels like an appropriate home for the Army Corps of Engineers—it’s sort of muscular but humane at the same time. It’s really a beautiful workplace.”

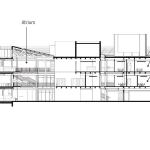
The interior workplace is focused on a central atrium that functions as a light- and view-filled gathering space surrounded by a variety of open, closed, and hybrid meeting spaces. These spaces accommodate a wide range of work styles and provide maximum flexibility as project teams grow and shrink. Workstations feature a lower-than-average cubicle height of 50 inches, providing nearly all employees with a view to the outdoors and access to natural light. Glass walls and partitions throughout much of the building extend the connection to nature. Exterior sun-shading elements, clerestory glazing, and internal adjustable window coverings control heat gain and glare. Because of federal security requirements and poor air quality stemming from the proximity of a cement plant, natural ventilation was not feasible. Instead, 100 percent of outside air is filtered to MERV 15 levels and flows into workspaces via underfloor plenums before exiting the building through the atrium.

Two new energy-conserving techniques—chilled sails and open office lighting—were developed and manufactured specifically for the Federal South project. In addition, the project is one of the first in the region to employ a thermal storage tank containing phase change material (PCM) that stores cooling energy for future use. The design/build team also reclaimed approximately 200,000 board feet of structural timber and 100,000 board feet of decking from a decommissioned, nonhistoric World War II–era warehouse on the site. Workers pulled nails, unfastened bolts, removed brackets and devices, trimmed out fractures, and sorted the wood before it was shipped to a local mill for structural grading and fabrication for use in the new building.

Allyn Stellmacher, AIA, design partner, ZGF Architects: “Our goal was to create something that was sustainable, functional, and flexible, that would also help transform the Corps’ culture from one of more silos to an integrated community. Organized around the work of the Corps, the open ‘oxbow’ building form is part of an integrated strategy providing measurable energy-performance benefits, as well as a completely unified, flexible work environment and collective identity for all departments who occupy the building. Throughout the building there are bridges, connections, and walkways that allow people to see each other, work together, and collaborate as a way to maximize the workplace potential and really energize the workforce.”

Funded through the American Recovery and Reinvestment Act of 2009, the three-story structure was planned, programmed, and built in less than two and a half years, and within the original $65 million budget. It is projected to consume one-third as much energy as that of a comparably sized building. In addition, 0.5 percent of the contract value has been retained pending verification of the building’s energy performance after one year of occupancy. As part of the one-year plan to ensure that energy performance targets are met, a real-time dashboard system provides instant feedback on energy use, helping to foster positive environmental habits for the occupants.

BY THE NUMBERS
Building gross floor area:
209,000 square feet
Estimated percent of occupants using public transit, cycling, or walking: 20
Percent of views to the outdoors: 90
Percent of spaces within 15 feet of an operable window: zero
Percent reduction of regulated potable water: 79
Potable water used for irrigation: Yes
Percent of rainwater from maximum anticipated 24-hour, two-year storm event that can be managed on site: 100
Total EUI (kBtu per square foot per year): 21
Net EUI (kBtu per square foot per year): 21
Percent reduction from national average EUI for building type: 74
Lighting power density (watts per square foot): 0.61
Third-party rating: LEED Gold (pending)
Total project cost at time of completion (land excluded): $65 million

Data and project information provided by ZGF Architects via AIA COTE Top Ten entry documents.

About the Author

Jennifer Goodman

Jennifer Goodman is a former editor for BUILDER. She lives in the walkable urban neighborhood of Silver Spring, Md.

No recommended contents to display.

Upcoming Events

  • Design Smarter: Leveraging GIS, BIM, and Open Data for Better Site Selection & Collaboration

    Live Webinar

    Register for Free
  • Slate Reimagined: The Surprising Advantages of Slate Rainscreen Cladding

    Webinar

    Register Now
  • The State of Residential Design Today: Innovations and Insights from RADA-Winning Architects

    Webinar

    Register for Free
All Events