2013 AIA COTE Top Ten Green Project: New Norris House in Norris,…
2013 AIA COTE Top Ten Green Project: New Norris House in Norris, Tenn., by the College of Architecture and Design at the University of Tennessee, Knoxville
College of Architecture and Design at the University of Tennessee
2013 AIA COTE Top Ten Green Project: New Norris House in Norris,…
2013 AIA COTE Top Ten Green Project: New Norris House in Norris, Tenn., by the College of Architecture and Design at the University of Tennessee, Knoxville
College of Architecture and Design at the University of Tennessee
2013 AIA COTE Top Ten Green Project: New Norris House in Norris,…
2013 AIA COTE Top Ten Green Project: New Norris House in Norris, Tenn., by the College of Architecture and Design at the University of Tennessee, Knoxville
College of Architecture and Design at the University of Tennessee
2013 AIA COTE Top Ten Green Project: New Norris House in Norris,…
2013 AIA COTE Top Ten Green Project: New Norris House in Norris, Tenn., by the College of Architecture and Design at the University of Tennessee, Knoxville
College of Architecture and Design at the University of Tennessee
2013 AIA COTE Top Ten Green Project: New Norris House in Norris,…
2013 AIA COTE Top Ten Green Project: New Norris House in Norris, Tenn., by the College of Architecture and Design at the University of Tennessee, Knoxville
Kem McCown
2013 AIA COTE Top Ten Green Project: New Norris House in Norris,…
2013 AIA COTE Top Ten Green Project: New Norris House in Norris, Tenn., by the College of Architecture and Design at the University of Tennessee, Knoxville
Ken McCown
2013 AIA COTE Top Ten Green Project: New Norris House in Norris,…
2013 AIA COTE Top Ten Green Project: New Norris House in Norris, Tenn., by the College of Architecture and Design at the University of Tennessee, Knoxville
Ken McCown
2013 AIA COTE Top Ten Green Project: New Norris House in Norris,…
2013 AIA COTE Top Ten Green Project: New Norris House in Norris, Tenn., by the College of Architecture and Design at the University of Tennessee, Knoxville
Ken McCown
2013 AIA COTE Top Ten Green Project: New Norris House in Norris,…
2013 AIA COTE Top Ten Green Project: New Norris House in Norris, Tenn., by the College of Architecture and Design at the University of Tennessee, Knoxville
Ken McCown
2013 AIA COTE Top Ten Green Project: New Norris House in Norris,…
2013 AIA COTE Top Ten Green Project: New Norris House in Norris, Tenn., by the College of Architecture and Design at the University of Tennessee, Knoxville
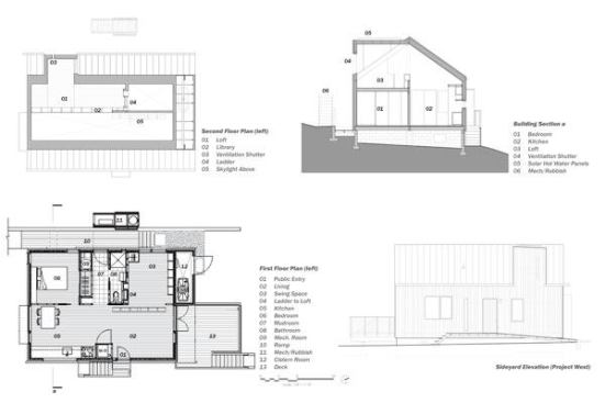
The New Norris House improves on a 1933 Tennessee Valley Authority experiment in sustainable living. (Click here for related case study.) The result is a simple, affordable house that boasts extreme reductions of energy and water usage.
The design team, led by university students and faculty from the University of Tennessee-Knoxville College of Architecture and Design, incorporated passive solar design and ventilation and an airtight building envelope to combat the area’s hot, humid summers and cool winters. They specified apertures that were composed for cross ventilation and useful solar gain, with overhangs and plantings intended to mitigate unwanted heat. High, open spaces and a concealed loft shutter promote stack ventilation and further extend the comfort zone.
Jury: “This little house is one of the few projects that really looked at the manufacturing process holistically to determine how a residence could be delivered on site in a very economical way and in a way that conserved energy. So we appreciated the kind of prefabricated nature of this and also the historical references to the older Norris houses, and we felt like this type of residence could be replicable so it could have a far greater influence than just a single house.”
The compact dwelling was manufactured off site to maximize material reductions and efficiencies, speed production, and ensure accuracy. The building’s two modular shells were delivered and joined on site; roof sections, hinged for transport, were raised and married on site. Advanced framing techniques resulted in a 17.5 percent reduction in lumber, as well as increased insulation and decreased thermal bridging. Off-site shell construction and panelized, prefabricated, modular units led to a 70 percent diversion of construction waste.
Project planners were keenly focused on water conservation and reuse. Thanks to experimental permits from state and local governments, project planners were able to explore the use of rainwater and graywater for use inside and outside the home, tactics that are prohibited nearly nationwide. About 85 percent of roof runoff is used for toilet flushing, clothes washing, and irrigation, and all graywater (except for that from the kitchen sink) is sent outdoors for treatment in a specially designed graywater infiltration bed. In the first year of study, 39,388 gallons of water were passively returned to the landscape through the graywater and rainwater overflow systems and only 2,379 gallons of potable water were used to establish landscape plantings—a 96.6 percent reduction from typical use in the United States. Because the landscape is native and drought-tolerant it no longer requires irrigation.
Samuel Mortimer, lecturer, the University of Tennessee College of Architecture and Design: “Norris, Tenn., is one of the first planned communities in the U.S., and the plan for the town provided the project team with a series of lessons: compact houses connected by footpaths and roads to schools, services, and a central common. The town is bounded by a greenbelt that exists to this day and serves as an aesthetic and natural preserve. The project entailed an integrated team approach to the design, construction, evaluation, and demonstration of a model dwelling. The process required that the team confront and resolve not only technological or scientific challenges, but also legal, social, and aesthetic issues that currently restrict green construction.”
The house was open to the public for tours for one year after its completion, and data is being collected to measure anticipated resource use and water quality through a live-in residency and blog (which can be accessed here).
BY THE NUMBERS Building gross floor area: 1,008 square feet Estimated percent of occupants using public transit, cycling, or walking: 100 Percent of views to the outdoors: 100 Percent of spaces within 15 feet of an operable window: 100 Percent reduction of regulated potable water: 62 Potable water used for irrigation: No Percent of rainwater from maximum anticipated 24-hour, two-year storm event that can be managed on site: 85 Total EUI (kBtu per square foot per year): 27 Net EUI (kBtu per square foot per year): 27 Percent reduction from national average EUI for building type: 39 Lighting power density (watts per square foot): 1.1 Third-party rating: LEED Platinum Total project cost at time of completion (land excluded): $180,000
Data and project information provided by the University of Tennessee-Knoxville College of Architecture and Design via AIA COTE Top Ten entry documents.