2013 AIA COTE Top Ten Green Project: James I. Swenson Civil Engineering Building

4 MIN READ

Sustainable principles were integral to Ross Barney Architects’ design of the James I. Swenson Civil Engineering Building at the University of Minnesota, Duluth, an educational facility whose curriculum directly impacts the natural environment. (Click here for a past case study.)

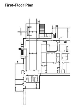
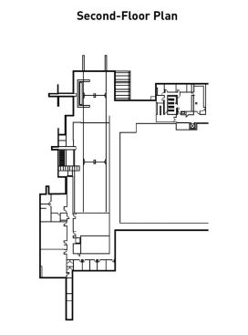
The facility encompasses student workspaces, classrooms, laboratories, and faculty offices. Designed to demonstrate its high-performance systems as a hands-on teaching tool, the building showcases a variety of structural and mechanical processes and stormwater management techniques.

Jury: “This is an example of wedding together buildings that perform well but also are aesthetically rich, and culturally useful, beneficial, and beautiful in their own way. The project has a very honest expression of the materials—it’s very clear what this building is made of. It’s creative in its architectural expression in a way that’s sculptural and sort of bold and solid like the sciences that are studied within. Seventy-seven percent energy reduction below the baseline in Duluth’s severe climate also is impressive.”

University officials worked with the project team, including Stephen Jenkins Architects and Stahl Construction, to keep the project within its relatively modest budget of $334 per square foot. For premium cost savings, the building was designed using passive sustainable strategies with a few innovative systems such as displacement ventilation in the high-bay laboratories and underfloor air distribution in the offices and classrooms. Energy modeling estimates an annual $21,000 savings, or 35.6 percent reduction over the baseline model.

Site and climatic conditions informed the placement of spaces within the building. The area’s harsh winter weather, coupled with minimal building use during the summer months due to university scheduling, was a key factor in the final building design. To reduce the exposed surface area, Ross Barney connected the structure to the north and west exposure of an existing adjacent building. The structure is also connected to the network of interior campus corridors, allowing students to access buildings without going outside and limiting the amount of cold air that enters the buildings. In addition, a majority of the occupied spaces are located on the buffered south perimeter of the building and clerestory windows line the south exposure of the large open hydraulics lab, allowing warm sun to penetrate and heat the space.

Michael A. Ross, AIA, principal, Ross Barney Architects: “As various sustainable design strategies were incorporated, the notion of building as a pedagogical tool took shape. Various systems were exposed and articulated in order to educate future civil engineers on building systems and materials. Materials were researched and evaluated based on economic feasibility and ability to contribute to sustainable design goals. This research informed the decision to incorporate and highlight natural materials for their inherent beauty and durability. Research was conducted to identify local materials that would provide a symbolic and tactile connection to the region.”

Since the site drains into a protected trout stream, stormwater management was a key ecological consideration. An innovative sloping roof drainage design does not funnel water directly into the storm sewer system, but rather employs a system of scuppers to direct roof water into a large underground French drain and rain gardens along the building perimeter. The French drain acts as a large wet sedimentation basin that retains the stormwater until it is pumped into the building for use in the hydraulics laboratory’s experimental flume. Through integrated use of permeable paving, rain gardens, and an underground stormwater retention system, 90 percent of the average precipitation is captured and treated on site.

Click here for a firm profile of Ross Barney Architects.

BY THE NUMBERS
Building gross floor area:
35,300 square feet
Estimated percent of occupants using public transit, cycling, or walking: 50
Percent of views to the outdoors: 56
Percent of spaces within 15 feet of an operable window: zero
Percent reduction of regulated potable water: 50
Potable water used for irrigation: No
Percent of rainwater from maximum anticipated 24-hour, two-year storm event that can be managed on site: 90
Total EUI (kBtu per square foot per year): 2.9
Net EUI (kBtu per square foot per year): 2.9
Percent reduction from national average EUI for building type: 77
Lighting power density (watts per square foot): 0.36
Third-party rating: LEED Gold
Total project cost at time of completion (land excluded): $11.2 million

Data and project information provided by Ross Barney Architects via AIA COTE Top Ten entry documents.

About the Author

Jennifer Goodman

Jennifer Goodman is a former editor for BUILDER. She lives in the walkable urban neighborhood of Silver Spring, Md.

No recommended contents to display.

Upcoming Events

  • Future Place

    Irving, TX

    Register Now
  • Archtober Festival: Shared Spaces

    New York City, NY

    Register Now
  • Snag early-bird pricing to Multifamily Executive Conference

    Newport Beach, CA

    Register Now
All Events