2011 Evergreen Awards Ecommercial New Construction Winner

Kroon Hall, School of Forestry and Environmental Studies at Yale University

5 MIN READ

Yale University in New Haven, Conn., harvested expertise from both sides of the Atlantic to design Kroon Hall for its School of Forestry & Environmental Studies. Goals for the project included a building to serve Yale well into the next century, to be carbon neutral, and to become the greenest academic building in the nation. London-based Hopkins Architects was the design architect and Centerbrook Architects and Planners out of Centerbrook, Conn., served as the project’s executive architect.

Mark Simon, FAIA, founding partner at Centerbrook, says that the collaboration was an opportunity to learn what designers were doing in other parts of the world. “We found that our core ideas about sustainability were the same, but some of the European methods differed,” he says. “Integration became a theme within the project team and the building itself. You can’t just attach sustainable devices to a building. Each element must serve more than one purpose.”

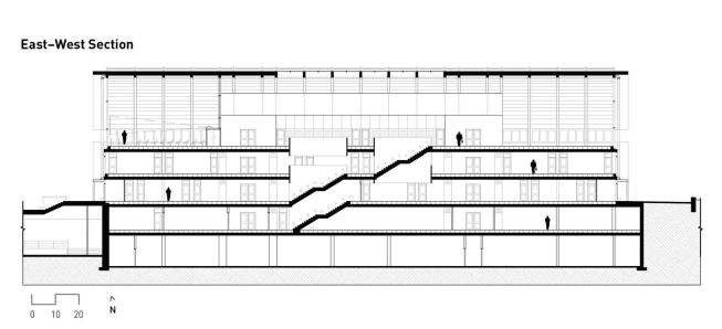
The $33.5 million Kroon Hall helped breathe new life into the campus’s south-facing science hill, which had aged into a semi-industrial site smudged with a decommissioned power plant, service vehicle roadways, and waste receptacles. The team designed the 68,800-square-foot, four-story building as a narrow form set into a slope. The thin shape created room for student-friendly outdoor spaces on either side. A walkway lures pedestrians into an expansive courtyard, which is actually a green roof above a new major loading-dock facility with underground service tunnels for all science hill buildings.

Operable windows along Kroon Hall’s slender profile offer cross ventilation, and the long south façade captures natural light year-round and allows heat gain in winter. Other passive design techniques include an exposed concrete structure to absorb and radiate energy. Windows are set deep into the sandstone exterior walls to create shading in summer yet allow the winter sun to penetrate. Red cedar louvers at the building’s east and west ends are fixed at an angle that blocks direct sunlight but gathers ambient light bouncing off of the ground.

The facility contains faculty offices, classrooms, an auditorium, library and study center, and a student lounge. The team maximized interior spaces and shrunk the building by nearly 15 percent without sacrificing any programming needs. “The front hall doubles as an entry lobby, and the ends of the central halls became the dean’s office suite and smaller lobbies,” Simon says. “Shrinking the building’s size saved money and that allowed us to spend more on insulation and sustainable features.”

A raised floor with a displacement ventilation system provides air right at the source of occupied space. Unlike systems that force the air down from the ceilings to reach the occupied zone, the incoming air can be more temperate and circulate more slowly, which saves energy through smaller fans and makes for less precooling and preheating.

A computer-driven mechanical system uses sophisticated European heat exchangers to capture 75 percent of the building’s exhaust-air energy, and four deep geothermal wells and heat exchangers to preheat and precool supply air. Hot-water radiators at the ends of the upper three floors provide supplemental heating.

The top floor has a cathedral ceiling lined in red oak, with half of the wood coming from Yale’s forests. Skylights offer a partial view to a 105-kilowatt solar photovoltaic array, which received a grant of $485,000 from the Connecticut Clean Energy Fund and was designed to provide 25 percent of the building’s electricity. In addition, solar hot-water panels on the roof are intended to meet half of the building’s hot-water requirements. An open stair shaft on the two upper floors reduces energy use by serving as a natural return-air shaft to minimize fan power and by bringing daylight from the skylights down into the building’s core.

Collected stormwater runoff is reused in toilet flushing and irrigation. Combined with fixtures such as waterless urinals and dual-flush toilets, the facility is designed to consume 81 percent less water than a conventional building, equating to a savings of 176,000 gallons of water annually.

Kroon Hall opened in 2009 and achieved a LEED Platinum rating. New Haven–based Atelier Ten assisted with sustainable design, performance modeling, and LEED oversight. The building received multiple awards and has drawn interest from beyond the campus. “Many people outside the school use the facility—dinners and conferences have been hosted there,” Simon says. “The building is a lot more popular than we ever expected it would be.”

KJ Fields writes about sustainability and architecture from Portland, Ore.

Project: Kroon Hall, School of Forestry & Environmental Studies, Yale University

Location: New Haven, Conn.

Green Team

Architectural lighting, acoustical design, electrical, fire protection, mechanical, plumbing, and structural engineer: Arup, arup.com

Civil engineering and stormwater management: Nitsch Engineering, nitscheng.com

Client: Yale University, yale.edu

Code consultant: Philip R. Sherman

Cost estimator: Faithful+Gould, fgould.com

Construction manager: Turner Construction Co., turnerconstruction.com

Design architect: Hopkins Architects, hopkins.co.uk

Executive architect: Centerbrook Architects and Planners, centerbrook.com

Geothermal engineer: Haley & Aldrich, haleyaldrich.com

Façade engineering and thermal performance: Simpson Gumpertz & Heger, sgh.com

Landscape architect: The Olin Studio, theolinstudio.com

Materials handling: SEA Consultants, seacon.com

Specifications consultant: Kalin Associates, kalinassociates.com

Sustainable design: Atelier Ten, atelierten.com

Materials and Sources

Carpet: InterfaceFlor, interfaceflor.com

Ceilings: Rulon International, rulonco.com

Concrete, masonry, and stone: The Briar Hill Stone Co., briarhillstone.com,

Curtainwall: Kawneer, kawneer.com

Furnishings: Bernhardt Design, bernhardtdesign.com; Fairhaven Furniture, fairhaven-furniture.com; Kusch+Co, kusch.com; Pompanoosuc Mills, pompy.com; Steelcase, steelcase.com

Glass: Viracon, www.viracon.com

HVAC: Menerga, menerga.co.uk; Silenceair, silenceair.com

Lighting: Access Lighitng Co., accesslighting.com; Gammalux Systems, gammalux.com; Nessen Lighitng, nessenlighting.com

Photovoltaics: Spire Corp., spirecorp.com; SunPower Corp., us.sunpowercorp.com

Paints, finishes, and sealants: Benjamin Moore & Co., benjaminmoore.com

Plumbing: SolarUK, solaruk.com

Roofing: Follansbee Steel, follansbeeroofing.com; Goodlam, a division of Goodfellow, goodfellowinc.com

Windows: Marvin Windows and Doors, marvin.com

By the Numbers

Building gross floor area: 68,800 square feet

Number of permanent occupants and visitors per week: 51 occupants; 522 visitors

Percent of the building that is daylit: 94.9

Percent of the building that can be ventilated or cooled with operable windows: 70.9

Total water used (gallons per year): 246,236 (design case)

Calculated annual potable water use (gallons per square foot per year): 3.57 (design case)

Total energy used (kBtu per square foot): 25

EPA performance rating: 93

Percent total energy savings: 62

LEED rating: Platinum, LEED-NC v.2.2

Total project cost: $33.5 million (land excluded)

Data provided by Centerbrook Architects and Planners

About the Author

No recommended contents to display.

Upcoming Events

  • Design Smarter: Leveraging GIS, BIM, and Open Data for Better Site Selection & Collaboration

    Live Webinar

    Register for Free
  • Slate Reimagined: The Surprising Advantages of Slate Rainscreen Cladding

    Webinar

    Register Now
  • The State of Residential Design Today: Innovations and Insights from RADA-Winning Architects

    Webinar

    Register for Free
All Events